СИДЕНИЕ И ОПОРА СИДЕНЬЯ — Продажа в Казахстане Цены от официального дилера с доставкой в Алматы, Астану и регионы
×
❮
❯
Характеристики и описание
Габариты, схема
Техническая документация
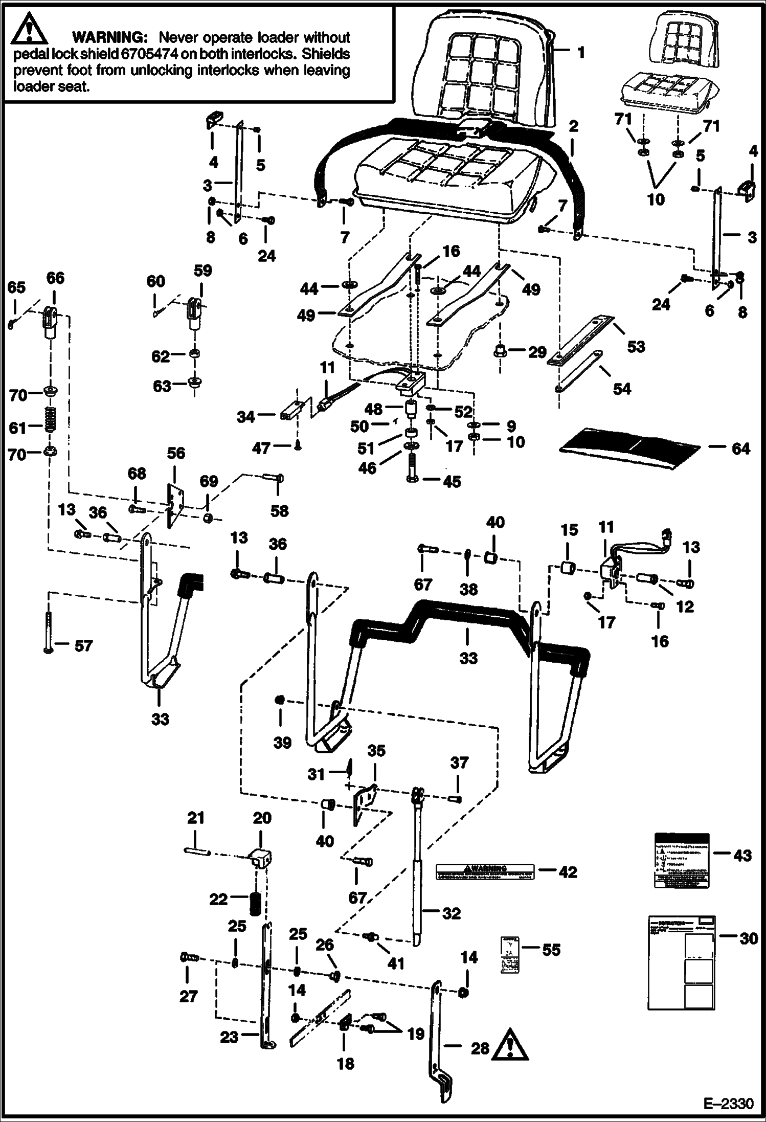
| 1 | Артикул: SEAT, SEAT See Illustration SEAT/ B7185 - Standard seat requires (1) of Ref. 1 located on RH side - Suspension seat requires (2) of Ref. 2 located one each side |
| 2 | Артикул: SEAT, SEAT BELT NLA - Order Ref. 64 - Was 6564774 - A |
| 3 | Артикул: SEAT, SEAT BELT NLA - Order 6675074 Seat Belt & (2) of Ref. 3 (6725373 Spring Plate) - Was 6667875 - A |
| 4 | Артикул: SEAT, SEAT BELT NLA - W/spring plate - Order 6675074 Seat Belt & (2) of Ref. 3 (6725373 Spring Plate) - Was 6725403 - A |
| 5 | Артикул: 6675074, SEAT BELT W/O spring plates |
| 6 | Артикул: GUIDE, GUIDE ASSY. NLA - W/Ref. 4 & 5 - 13.75-- (349,3 mm) long - Use W/Ref. 2 (NLA/6564774 seat belt) - Was 6565354 - A |
| 7 | Артикул: GUIDE, GUIDE ASSY. NLA - W/Ref. 4 & 5 - 12.25-- (311,2 mm) long - Use W/Ref. 2 (NLA/6667875 seat belt) - Order 6711908 spring plate, Ref. 4 & (2) of Ref. 5 - Was 6711907 - A |
| 8 | Артикул: 6711908, SPRING PLATE Use W/Ref. 2 (NLA/6725403 Seat Belt) |
| 9 | Артикул: 6725373, SPRING PLATE Use W/Ref. 2 (6675074 seal belt) |
| 10 | Артикул: GUIDE, GUIDE NLA - Order 6703703 - Was 6565355 |
| 11 | Артикул: 6630207, RIVET 5 |
| 12 | Артикул: 85D6, NUT, 5 |
| 13 | Артикул: 17C716, BOLT Was 17C000715B - D |
| 14 | Артикул: 85D7, NUT |
| 15 | Артикул: 6701174, WASHER |
| 16 | Артикул: 61D5, NUT |
| 17 | Артикул: 61D5, NUT |
| 18 | Артикул: 59D5, NUT 5 Was 61D000005B - B |
| 19 | Артикул: 59D5, NUT 5 |
| 20 | Артикул: 7105252, SENSOR, SEAT BAR POSITION Order Ref. 50 - Was 6670652 - A |
| 21 | Артикул: 6706685, BUSHING |
| 22 | Артикул: 35C608, BOLT |
| 23 | Артикул: 35C608, BOLT |
| 24 | Артикул: 35C612, BOLT |
| 25 | Артикул: 35C612, BOLT |
| 26 | Артикул: 83D6, NUT 5 |
| 27 | Артикул: 6680473, BUSHING, MAGNET Was 6671135 - A |
| 28 | Артикул: 35C410, BOLT 5 fastens thru tab - .625--(15,9 mm) long |
| 29 | Артикул: 17C428, BOLT fastens thru body of Ref. 11 - 1.75--(44,4 mm) long - Was 6710539 - A |
| 30 | Артикул: 83D4, NUT 10 for bolt thru tab |
| 31 | Артикул: 50D12, NUT for bolt thru body |
| 32 | Артикул: 6563151, LINK |
| 33 | Артикул: 17C616, BOLT 5 |
| 34 | Артикул: 6563148, BLOCK, SPRING |
| 35 | Артикул: 14J2512, PIN 5 |
| 36 | Артикул: 6702430, SPRING, COMPRESSION |
| 37 | Артикул: 6578150, LOCK |
| 38 | Артикул: 17C612, BOLT 5 |
| 39 | Артикул: 17C612, BOLT 5 |
| 40 | Артикул: 17C612, BOLT 5 |
| 41 | Артикул: 17C612, BOLT 5 |
| 42 | Артикул: 6700170, WASHER plastic |
| 43 | Артикул: 6559479, NUT |
| 44 | Артикул: 6705489, BOLT |
| 45 | Артикул: 6705474, LOCK SHIELD Never operate loader without pedal lock shield on both interlocks ... SEE WARNING ON PREVIOUS PAGE |
| 46 | Артикул: 6707319, NUT spacer |
| 47 | Артикул: 6722392, INSTRUCTIONS - For Ref. 28 |
| 48 | Артикул: 6631418, RING, RETAINING |
| 49 | Артикул: 6631418, RING, RETAINING |
| 50 | Артикул: 6664207, GAS SPRING |
| 51 | Артикул: 6716778, SEAT BAR for Use W/Gas Spring - Was 6706358 - A |
| 52 | Артикул: 6716778, SEAT BAR |
| 53 | Артикул: SEAT, SEAT BAR NLA - for Use W/Compression Spring - Order 6716777 Seat Bar & (2) ea. of Ref. 55, 57, 65 & 66 - Was 6710661 - A |
| 55 | Артикул: 6716777, SEAT BAR Was 6713609 - A |
| 56 | Артикул: 6716777, SEAT BAR |
| 57 | Артикул: 6665000, CLIP |
| 58 | Артикул: 6706388, BRACKET |
| 59 | Артикул: 6706388, BRACKET |
| 60 | Артикул: 6706962, BUSHING |
| 61 | Артикул: 4F5062, PIN |
| 62 | Артикул: 4F5062, PIN |
| 63 | Артикул: 25E17, WASHER 5 Was 25E000018B - B |
| 64 | Артикул: 85D5, NUT 5 |
| 65 | Артикул: 6680441, BUSHING keyed - Was 6664882 - A |
| 66 | Артикул: 6649244, BALL STUD |
| 67 | Артикул: 6649244, BALL STUD |
| 68 | Артикул: 6577754, DECAL, WARNING 5 gas spring |
| 69 | Артикул: 6577754, DECAL, WARNING 5 gas spring |
| 70 | Артикул: 6707134, DECAL instruction for LCS |
| 71 | Артикул: 6706890, WASHER |
| 72 | Артикул: 17C508, BOLT |
| 73 | Артикул: 25E16, WSHR |
| 74 | Артикул: 6664221, RETAINER |
| 75 | Артикул: 6710751, BUSHING spacer - Was 6706686 - A |
| 76 | Артикул: 6706966, SPRING, SEAT plate |
| 77 | Артикул: 6706966, SPRING, SEAT plate - for Use W/Milsco seat |
| 78 | Артикул: 6680523, KEY,MAGNETIC magnetic bushing - Was 6664881 - A |
| 79 | Артикул: 6680472, SENSOR tapered magnetic - Was 6666608 - A |
| 80 | Артикул: 25E10, WASHER |
| 81 | Артикул: 6711729, COVER |
| 82 | Артикул: 6711730, STRIP |
| 83 | Артикул: 6705720, DECAL lock shield |
| 84 | Артикул: 6705720, DECAL |
| 85 | Артикул: 6710660, MOUNT |
| 86 | Артикул: 6710660, MOUNT |
| 87 | Артикул: 6713887, BOLT Was 6711897 - A |
| 88 | Артикул: 6713887, BOLT |
| 89 | Артикул: 4F6106, PIN |
| 90 | Артикул: 4F6106, PIN |
| 91 | Артикул: 2J6208, YOKE |
| 92 | Артикул: 2J6208, YOKE |
| 93 | Артикул: 1306637, CLIP |
| 94 | Артикул: 1306637, CLIP |
| 95 | Артикул: 6701535, SPRING |
| 96 | Артикул: 6701535, SPRING |
| 97 | Артикул: 8D6, NUT 5 |
| 98 | Артикул: 8D6, NUT 5 |
| 99 | Артикул: 6571991, GUIDE |
| 100 | Артикул: 6571991, GUIDE |
| 101 | Артикул: KIT, KIT NLA - seat belt & guide assy. - Ref. 2 & 3 - Order Ref. 2 (6675074 Seat Belt & (2) of Ref. 3 (6725373 Spring Plate) - Was 6713061 - A |
| 102 | Артикул: 6631418, RING, RETAINING |
| 103 | Артикул: 6631418, RING, RETAINING |
| 104 | Артикул: 6713589, CLEVIS |
| 105 | Артикул: 6713589, CLEVIS |
| 106 | Артикул: 17C612, BOLT 5 |
| 107 | Артикул: 17C612, BOLT 5 |
| 108 | Артикул: 17C608, BOLT |
| 109 | Артикул: 17C608, BOLT |
| 110 | Артикул: 17C712, BOLT |
| 111 | Артикул: 17C712, BOLT |
| 112 | Артикул: 91D7, NUT |
| 113 | Артикул: 91D7, NUT |
| 114 | Артикул: 6710659, BUSHING |
| 115 | Артикул: 6710659, BUSHING |
| 116 | Артикул: 6707318, GUIDE Was 6571991 - B,D |
| 117 | Артикул: 6707318, GUIDE |
СИДЕНИЕ И ОПОРА СИДЕНЬЯ: Техника, которая работает на результат
СИДЕНИЕ И ОПОРА СИДЕНЬЯ на Bobcat 700s Bobcat 773 509616001 - 509629999, 509635001 И ВЫШЕГабаритные размеры
Нажмите на схему для увеличения
Документация
Документация временно недоступна.
Похожая техника в категории: РАМА (Bobcat)
BOB-TACH
1Артикул: BOB-TA...
2Артикул: BOB-TA...
3Артикул: BOB-TA...
Подробнее >
СИДЕНИЕ (МИЧИГАН)
1Артикул: SEAT, ...
2Артикул: 666913...
3Артикул: 667016...
Подробнее >
КАБИНА ОПЕРАТОРА
1Артикул: 670195...
2Артикул: 670868...
3Артикул: 670615...
Подробнее >
ПАНЕЛИ
1Артикул: 670731...
2Артикул: 84G371...
3Артикул: SHIELD...
Подробнее >
ТОПЛИВНАЯ СИСТЕМА
1Артикул: TANK, ...
2Артикул: 673665...
3Артикул: 712088...
Подробнее >
ПОДЪЕМНЫЕ РУКОЯТИ И BOBTACH
1Артикул: 654759...
2Артикул: 670428...
3Артикул: 655545...
Подробнее >
СИДЕНЬЕ (MILSCO)
1Артикул: 656314...
2Артикул: CUSHIO...
3Артикул: 663046...
Подробнее >
ЗАДНЯЯ ДВЕРЬ (НЕРАЗБОРНЫЙ) (СЕРИЙНЫЙ НОМЕР 509643761 И ВЫШЕ, 509616768 - 509634999)
1Артикул: 667028...
2Артикул: BUMPER...
3Артикул: 665539...
Подробнее >
ЗАДНЯЯ ДВЕРЬ (ДВЕ ЧАСТИ) (СЕРИЙНЫЙ НОМЕР 509635001 - 509643760, 509616001 - 509616767)
1Артикул: 670386...
2Артикул: 670468...
3Артикул: 670468...
Подробнее >